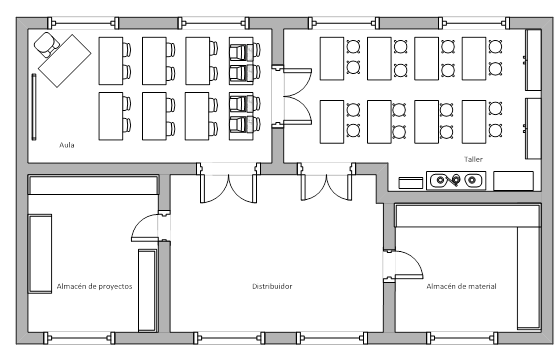
1.3.- EL AULA TALLER DE TECNOLOGÍA
Aggregazione dei criteri
Para llevar a cabo todos nuestro proyectos y el buen desarrollo de la
materia dispondremos de nuestra aula-talleren ella tenemos que realizar funciones del tipo, analizar problemas, discutir
en grupo, buscar información, realizaremos actividades manuales, etc. Para ello
el espacio tiene que estar bien diferenciado por zonas.
Una buena
distribución de cómo sería nuestro taller sería la siguiente:

Ultime modifiche: martedì, 30 giugno 2015, 08:47