Ir ao contido principal
Panel lateral
Inicio
Calendario
Mis accesos
Web IES Ricardo Mella
Portal Educativo
Formación profesional
Ir a Google
Máis
Neste momento está usando o acceso para convidados
Acceder
Inicio
Calendario
Mis accesos
Contraer
Expandir
Web IES Ricardo Mella
Portal Educativo
Formación profesional
Ir a Google
Expandir todo
Contraer todo
Abrir o índice do curso
Xestión de proxectos de instalacións de telecomunicacións
UD 2 : Elaboración de planos e esquemas de instalacións de telecomunicacións
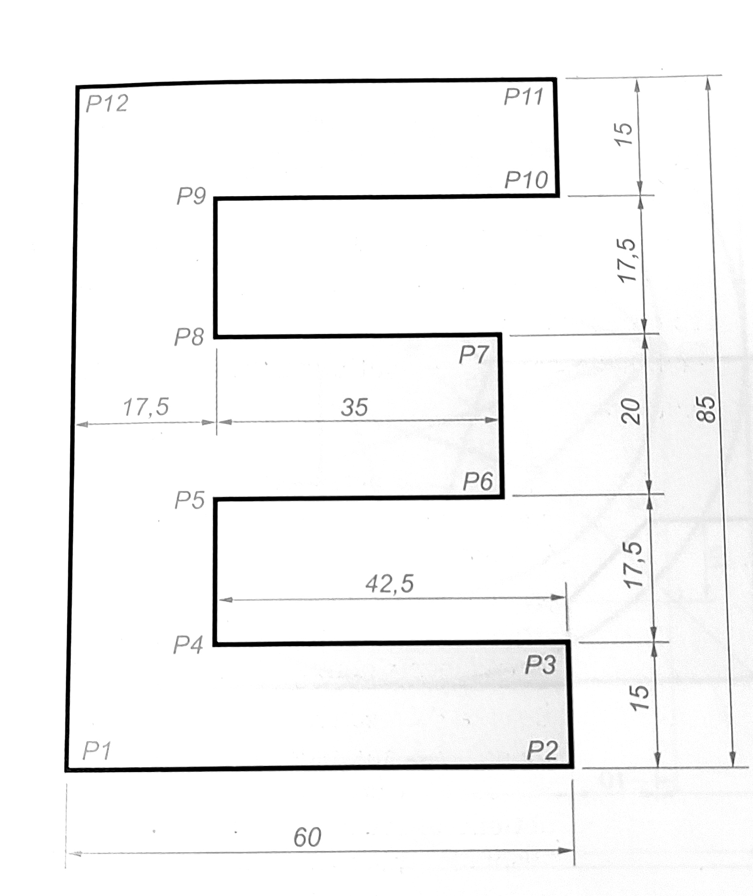
Chapa de transformador
Chapa de transformador
Requisitos do completado